漂洋过海的来看你,为了这次相聚,我连见面时的呼吸,都曾反复练习,言语从来没能将我的情意,表达千万分之一。
——李宗盛
■项目地址:天逸华府
■设计主创:宋坤
■建筑面积:127平
■设计风格:现代风
■设计单位:久米装饰
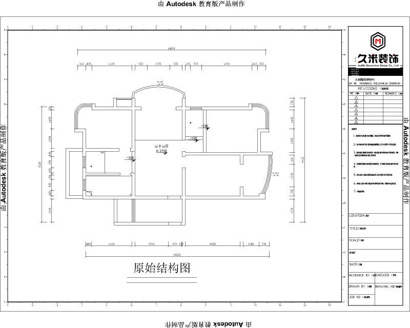
■原始户型图

■平面布置图

本案是三室两厅的案例,户型不做大改动,餐厅处打通了墙壁,使空间更加宽阔自由;厨房敲掉了墙壁,增加面积,改成了L型厨房;卧室打通了墙壁,增加了衣帽间功能。
关于风格的定向,是简约的现代风,加上一抹亮色的活泼,适合热爱生活又并不快节奏的生活方式,给整个空间带来了生气和时尚。
在色彩方面是黑与橙的大胆碰撞,加一些相衬映的淡色,让整体空间是在暗色系的情况下依旧能保持亮度明亮,一些通透的家居品的精致感,还有石材上一些颜色的选择,都让整个空间更明亮了许多。
LIVING ROOM

当太阳落下去的时候,当赤道向北偏移三千里,当城市变成了岛屿。
此时我才会发现,家里还有阳光的出现,站在这时间之间,直到永远。



色彩的碰撞、线条的碰撞、巨大艺术画的冲击,都给了这个空间无限的想象力,180°弧形落地窗造就了明亮的环境,又呈现了舒适恬静的氛围。


让时光慢慢流淌,抛弃繁杂心情,拥抱宁静,会发现生活还是很美好的。
DINING ROOM


餐厅也少不了亮黄色,一日三餐,简单的幸福就在此呈现,夜幕降临之时,简单的温馨就在此流淌。


餐厅给了充足的自由活动空间,玻璃制品恰到好处地装饰了一份精致感。
STUDY


留一份小空间给自己思考,在静谧之中领悟生活的奥义、家的奥义。
BED ROOM

当太阳落下它还会再升起,当海角天涯相距千万里,我们总会留恋这灯影游离的日子,就像这夜里泛滥的美。


寒来暑往,秋冬收藏,你我也要来日方长。

可爱壁纸、海星灯、蓝色窗帘…几种元素缓缓构成一副海浪与沙滩的童趣乐景,给孩子提供了一个欢乐的成长环境。
Tel
0550-3321110
QQ
2822396453
Add
滁州市丰乐大道长江商贸城B区二栋 7楼
扫 一 扫 联 系 我 们
▼